RENZ Prisma Freistehende Briefkastenanlage in RAL
Material:
- Tür, Korpus und Verkleidung aus pulverbeschichtetem Galfan Stahl
- Einwurfklappe aus Aluminium
Einzelkastenmaße (BxHxT):
- 370 x 330 x 100 mm, 12 Liter
- 370 x 330 x 145 mm, 17 Liter
- 370 x 440 x 145 mm, 23 Liter
Einwurfmaß (BxH):
- 335 x 30 / 33 mm (ohne / mit Klappe)
- Einwurfschlitz für C4 quer Format geeignet
- Entspricht DIN EN 13724
Ausstattung des freistehenden RENZ Prisma:
- Kunststoff Namensschild
Welche Merkmale besitzt die freistehende Briefkastenanlage Prisma?
Ein Eyecatcher auf Ihrem Grundstück wird die freistehende Briefkastenanlage Prisma von RENZ. Das markante Design gehört zum Exclusive Sortiment von RENZ und liegt somit in der mittleren Preiskategorie. Das große schräge Dach sorgt für einen optimalen Regenschutz. Außerdem verschmutzte es durch die Schräge nicht schnell. Weiterhin ein praktischer Vorteil ist das das Ablegen von Müll oder Altpapier erschwert wird.
Zum Equipment gehört bei dem freistehenden Briefkasten Prisma ein Regenschutzüberstand, eine rückseitige Verkleidung und ein NS09 Namensschild aus Kunststoff.
RENZ verwendet für die Produktion der Briefkästen hochwertigen Galfan Stahl. Durch Zink-Aluminium-Legierung besitzt es eine 4 mal höhere Widerstandsfähigkeit als feuerverzinkten Stahl. Da RENZ auf Qualität bei en Materialien und der Verarbeitung setzt gewährt RENZ 10 Jahre Korrosionsbeständigkeit auf die Briefkästen.
Wie wird die RENZ Briefkastenanlage montiert?
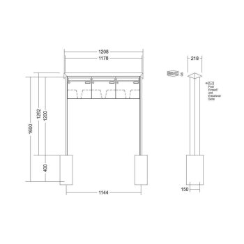
Wählen Sie aus ob Ihre freistehende Briefkastenanlage in den Boden einbetoniert oder mit Fußplatten auf ein Fundament aufgeschraubt werden soll. Das Gestell welches einbetoniert wird ist 400 mm länger.
Sind individuelle freistehende Briefkastenanlagen möglich?
Bei „Dein Briefkasten“ bieten wir Standardausführungen an. Natürlich können diese Produkte mit zusätzlichen oder anderen Namensschildern sowie Klingeltaster, veränderte Kastenanordnungen, eine größere Kastenanzahl, Gravuren, Beleuchtungen und noch vieles mehr verändert werden. Bei RENZ bleibt fast kein Wunsch unerfüllt. Wir erstellen Ihnen gern ein Angebot für Ihre individuelle freistehende RENZ Briefkastenanlage!
Die freistehende Briefkastenanlage Prisma in RAL ist auch mit Sprechsieb erhältlich.
Alternativ finden Sie bei uns auch diese Designs für freistehende Briefkastenanlagen: Basic B, RS2000, Tetro, Quadra oder RENZ Plan.
Straße: Boschstr. 3
PLZ, Ort: 71737 , Kirchberg / Murr
Land: Deutschland
Bundesland: Baden-Württemberg
E-Mail: info@renzgroup.de
Homepage: https://www.renzgroup.de/













